Архитектура
Дизайн
Конкурсы
Ландшафт
Главная
→
Дизайн
→
Холодная гора
Холодная гора
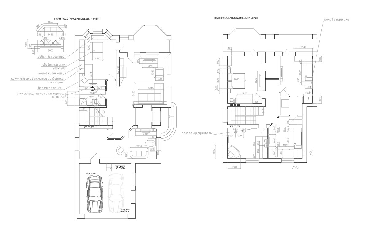
Интерьер частного дома решен в эклектичном стиле. Деревянные балки, натуральный камень в отделке камина, керамическая плитка под камень создают уютное и удобное пространство для большой семьи и гостей.